
CASTAGNINO | Maipú 559
Confort y sofisticación en un solo lugar.
El Edificio Castagnino se ubica en una de las zonas históricas y culturales de nuestra ciudad, de rápida conectividad, cercana a parques y el Río Paraná.
Sofisticado, moderno, atemporal, el edificio alberga departamentos confortables y luminosos, con ambientes amplios e integrados y diversas amenities que fueron diseñadas centrándose en las necesidades contemporáneas de quienes lo habiten.
Sus líneas puras y materialidad neutra, la integración con la naturaleza, los balcones terraza y la conexión armónica entre interior y exterior a través de grandes ventanales le otorgan una impronta distintiva y vanguardista.
En Di Mauro buscamos acompañar las nuevas formas de habitar la ciudad, integrando cada proyecto de vida a nuestros diseños. Entender y visualizar de manera responsable las necesidades de nuestros clientes es lo que caracteriza a la calidad Di Mauro.
PROYECTO EN CONSTRUCCIÓN | FIDEICOMISO AL COSTO EN PESOS
Forma de pago inicial: 25% + 30 cuotas ajustables con C.A.C

EDIFICIO DE 10 PISOS
UNIDADES
1, 2 y 3 dormitorios
Local Comercial en Planta Baja / Oficinas en 1° piso
AMENITIES
Planta Baja: Coworking, Sala de niños y GYM
Azotea: quinchos con parrilla, piscina y solarium
COCHERAS
Optativas en subsuelos

Diseño armónico y calidad constructiva
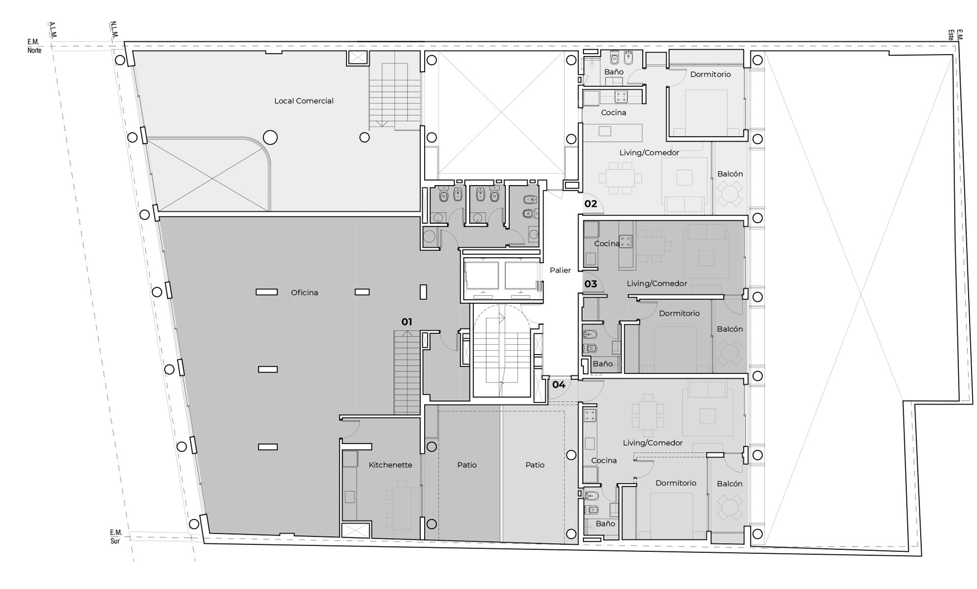
Piso 1: 01 – Local comercial | Oficina
Local Comercial: 6.95 x 11.85 m. | Superficie total: 74,48 m2
Oficina: 13.67 x 8.70 m.
Superficie cubierta: 176 m2
Patio 19,95 m2
Superficie total: 195,95 m2
Piso 1: 02 – 1 dormitorio
Superficie cubierta: 50,24 m2 |
Superficie semicubierta: 5,24 m2 | Superficie Total 55,48 m2
Living Comedor: 3,18 x 5,49 m. | Cocina: 2,30 x 2,50 m. |
Balcón: 3,18 x 1,45 m. | Dormitorio: 3,72 x 3,19 m. |
Baño: 1,55 x 2,52 m.

Piso 1: 03 – 1 dormitorio
Superficie cubierta: 44,59 m2
Superficie semicubierta: 5,35 m2
Superficie Total 49,94 m2
Living Comedor: 3,18 x 4,61 m. | Cocina: 2,24 x 2,13 m.
Balcón: 3,17 x 1,45 m. | Dormitorio: 3,17 x 3,70 m.
Baño: 2,09 x 1,67 m.
Piso 1: 04 – 1 dormitorio + patio
Superficie cubierta: 48,44 m2
Superficie semicubierta: 8,96 m2
Superficie patio 19,63 m2 | Superficie Total 77,03 m2
Living Comedor: 3,18 x 5,34 m. | Cocina: 3,30 x 1,55 m. |
Balcón: 3,70 x 1,63 m. | Dormitorio: 3,53 x 3,62 m. |
Baño: 1,50 x 2,07 m.

Piso 2: 01 – 3 dormitorios + terraza
Superficie cubierta: 107,96 m2
Superficie semicubierta: 19,88 m2
Terraza: 17,50 m2 | Superficie Total 145,34 m2
Living Comedor: 3,10 x 6,87 m. | Cocina: 3,20 x 2,50 m.
Balcón: 6,38 x 1,90 m.| Terraza: 5,60 x 2,72 m.
Balcón secundario c/parrilla: 2,87 x 1,83 m.
Lavadero: 2,51 x 1,20 m. | Dormitorio: 2,61 x 3,50 m.
Dormitorio: 3,06 x 3,72 m. | Dormitorio Suite: 3,66 x 3,80 m.
Baño Suite: 2,57 x 1,59 m. | Baño: 3,02 x 1,59 m.
Piso 2: 02 – 2 dormitorios + terraza
Superficie cubierta: 82,82 m2
Superficie semicubierta: 15,57 m2
Terraza: 17,5 m2 | Superficie Total 115,89 m2
Living Comedor: 3,10 x 6,07 m. | Cocina: 3,20 x 2,50 m.
Balcón: 6,42 x 1,65 m. | Terraza: 5,71 x 2,72 m.
Balcón secundario: 1,75 x 1,42 m.
Dormitorio: 3,72 x 3,07 m. | Dormitorio Suite: 3,74 x 3,83 m.
Baño Suite: 1,59 x 2,42 m.
Baño: 2,12 x 1,46 m.

Piso 2: 03 – 1 dormitorio
Superficie cubierta: 50,24 m2 |
Superficie semicubierta: 5,24 m2 | Superficie Total 55,48 m2
Living Comedor: 3,18 x 5,49 m. | Cocina: 2,24 x 2,55 m. |
Balcón: 3,18 x 1,45 m. | Dormitorio: 3,72 x 3,19 m. |
Baño: 1,55 x 2,52 m.
Piso 2: 05 – 1 dormitorio
Superficie cubierta: 48,44 m2 |
Superficie semicubierta: 8,96 m2
Superficie patio 19,63 m2 | Superficie Total 77,03 m2
Living Comedor: 3,18 x 5,34 m. | Cocina: 3,30 x 1,55 m. |
Balcón: 3,70 x 1,63 m. | Dormitorio: 3,53 x 3,62 m. |
Baño: 1,50 x 2,07 m.
Piso 2: 04 – 1 dormitorio
Superficie cubierta: 44,59 m2. | Superficie semicubierta: 5,35 m2
Superficie Total 49,94 m2
Living Comedor: 3,18 x 4,61 m. | Cocina: 2,24 x 2,13 m.
Balcón: 3,17 x 1,45 m. | Dormitorio: 3,17 x 3,70 m.
Baño: 2,09 x 1,67 m.

Piso 3 a 4: 01 – 3 dormitorios
Superficie cubierta: 107,96 m2
Superficie semicubierta: 19,88 m2
Superficie Total: 127,84 m2
Living Comedor: 3,10 x 6,87 m. | Cocina: 3,20 x 2,50 m.
Balcón: 6,38 x 1,90 m.
Balcón secundario c/parrilla: 2,87 x 1,83 m.
Lavadero: 2,51 x 1,20 m. | Dormitorio: 2,61 x 3,50 m.
Dormitorio: 3,06 x 3,72 m. | Dormitorio Suite: 3,66 x 3,80 m.
Baño Suite: 2,57 x 1,59 m. | Baño: 3,02 x 1,59 m.
Piso 3 a 4: 02 – 2 dormitorios
Superficie cubierta: 82,82 m2
Superficie semicubierta: 15,57 m2
Superficie Total: 98,39 m2
Living Comedor: 3,10 x 6,07 m. | Cocina: 3,20 x 2,50 m.
Balcón: 6,42 x 1,65 m.
Balcón secundario: 1,75 x 1,42 m.
Dormitorio: 3,72 x 3,07 m. | Dormitorio Suite: 3,74 x 3,83 m.
Baño Suite: 1,59 x 2,42 m.
Baño: 2,12 x 1,46 m.

Piso 3 a 4: 03 – 1 dormitorio
Superficie cubierta: 50,24 m2 |
Superficie semicubierta: 5,24 m2 | Superficie Total 55,48 m2
Living Comedor: 3,18 x 5,49 m. | Cocina: 2,24 x 2,55 m. |
Balcón: 3,18 x 1,45 m. | Dormitorio: 3,72 x 3,19 m. |
Baño: 1,55 x 2,52 m.
Piso 3 a 4: 05 – 1 dormitorio
Superficie cubierta: 49,72 m2 | Superficie semicubierta: 5,24 m2
Superficie Total: 54,96 m2
Living Comedor: 3,18 x 5,49 m. | Cocina: 3,58 x 2,24 m.
Balcón: 3,18 x 1,45 m. | Dormitorio: 3,69 x 3,19 m.
Baño: 1,43 x 1,96 m.
Piso 3 a 4: 04 – 1 dormitorio
Superficie cubierta: 44,59 m2
Superficie semicubierta: 5,35 m2 | Superficie Total 49,94 m2
Living Comedor: 3,18 x 4,61 m. | Cocina: 2,24 x 2,13 m.
Balcón: 3,17 x 1,45 m. | Dormitorio: 3,17 x 3,70 m.
Baño: 2,09 x 1,67 m.

Piso 5 y 8: 01 – 3 dormitorios
Superficie cubierta: 107,96 m2
Superficie semicubierta: 19,88 m2
Superficie Total: 127,84 m2
Living Comedor: 3,10 x 6,87 m. | Cocina: 3,20 x 2,50 m.
Balcón: 6,38 x 1,90 m.
Balcón secundario c/parrilla: 2,87 x 1,83 m.
Lavadero: 2,51 x 1,20 m. | Dormitorio: 2,61 x 3,50 m.
Dormitorio: 3,06 x 3,72 m. | Dormitorio Suite: 3,66 x 3,80 m.
Baño Suite: 2,57 x 1,59 m. | Baño: 3,02 x 1,59 m.
Piso 5 y 8: 02 – 2 dormitorios
Superficie cubierta: 82,82 m2
Superficie semicubierta: 15,57 m2
Superficie Total: 98,39 m2
Living Comedor: 3,10 x 6,07 m. | Cocina: 3,20 x 2,50 m.
Balcón: 6,42 x 1,65 m.
Balcón secundario: 1,75 x 1,42 m.
Dormitorio: 3,72 x 3,07 m. | Dormitorio Suite: 3,74 x 3,83 m.
Baño Suite: 1,59 x 2,42 m.
Baño: 2,12 x 1,46 m.

Piso 5 y 8: 03 – 3 dormitorios
Superficie cubierta: 143,50 m2
Superficie semicubierta: 26,70 m2
Superficie Total: 170,20 m2
Living Comedor: 7,74 x 4,67 m. | Cocina: 2,70 x 3,60 m.
Balcón c/parrilla: 8,01 x 2,20 m
Balcón secundario: 2,25 x 1,51 m.
Lavadero: 1,82 x 1,74 m. | Dormitorio: 2,21 x 3,88 m.
Dormitorio: 3,30 x 3,88 m. | Dormitorio Suite: 3,68 x 3,13 m.
Vestidor Suite: 2,36 x 1,92 m.
Baño Suite: 3,18 x 1,65 m. | Baño: 2,48 x 1,65 m.
Piso 6, 7, 9 y 10: 01 – 3 dormitorios
Superficie cubierta: 107,96 m2
Superficie semicubierta: 19,88 m2
Superficie Total: 127,84 m2
Living Comedor: 3,10 x 6,87 m. | Cocina: 3,20 x 2,50 m.
Balcón: 6,38 x 1,90 m.
Balcón secundario c/parrilla: 2,87 x 1,83 m.
Lavadero: 2,51 x 1,20 m. | Dormitorio: 2,61 x 3,50 m.
Dormitorio: 3,06 x 3,72 m. | Dormitorio Suite: 3,66 x 3,80 m.
Baño Suite: 2,57 x 1,59 m. | Baño: 3,02 x 1,59 m.
Piso 6, 7, 9 y 10: 02 – 2 dormitorios
Superficie cubierta: 82,82 m2
Superficie semicubierta: 15,57 m2
Superficie Total: 98,39 m2
Living Comedor: 3,10 x 6,07 m. | Cocina: 3,20 x 2,50 m.
Balcón: 6,42 x 1,65 m.
Balcón secundario: 1,75 x 1,42 m.
Dormitorio: 3,72 x 3,07 m. | Dormitorio Suite: 3,74 x 3,83 m.
Baño Suite: 1,59 x 2,42 m.
Baño: 2,12 x 1,46 m.

Piso 6, 7, 9 y 10: 03 – 3 dormitorios
Superficie cubierta: 94,09 m2
Superficie semicubierta: 16,23 m2
Superficie Total: 110,32 m2
Living Comedor: 6,57 x 3,29 m. | Cocina: 4,22 x 2,02 m.
Balcón c/parrilla: 6,17 x 1,60 m.
Balcón secundario: 3,00 x 1,50 m.
Dormitorio: 3,72 x 3,83 m. | Dormitorio: 2,72 x 3,59 m.
Dormitorio Suite: 3,18 x 3,19 m. | Vestidor Suite: 2,26 x 1,87 m.
Baño Suite: 2,12 x 1,70 m. | Baño: 2,19 x 1,86 m.
Piso 6, 7, 9 y 10: 04 – 1 dormitorio
Superficie cubierta: 49,72 m2 | Superficie semicubierta: 5,24 m2
Superficie Total: 54,96 m2
Living Comedor: 3,18 x 5,49 m. | Cocina: 3,58 x 2,24 m.
Balcón: 3,18 x 1,45 m. | Dormitorio: 3,69 x 3,19 m.
Baño: 1,43 x 1,96 m.
Azotea
SUM + terraza
Superficie cubierta: 41,50 m2 | Terraza: 109 m2
SUM: 8,90 x 4,24 m. | Terraza: 5,98 x 7,05 m. |
Terraza: 6,00 x 7,05 m.
Piscina
Superficie: 48 m2 | 11,20 x 4,00 m.
Solarium
Superficie: 97,12 m2 | 5,80 x 4,95 m. | 9,00 x 4,50 m.



Planta baja
Hall ingreso Oficina
Superficie cubierta: 41,83 m2 | 4,67 x 8,14 m.
Local comercial / Oficina
Superficie cubierta: 91,80 m2 | 6,88 x 11,75 m.
Espacios comunes
Hall ingreso: 4,75 x 9,87 m. |
Ingreso estacionamiento: 3,55 x 5,00 m. | Patio: 5,53 x 6,55 m.
Amenities
Coworking
Superficie cubierta: 75,79 m2 | Coworking: 7,05 x 6,87 m.
Oficina Coworking: 3,16 x 2,71 m.
Oficina Coworking: 3,16 x 2,71 m.
GYM
Superficie cubierta: 40,53 m2 | 6,55 x 5,51 m.
Sala de niños
Superficie cubierta: 24,41 m2 | 3,66 x 5,14 m.
Jardín
Superficie: 187,80 m2 | 21,15 x 8,50 m.


Cocheras: 1 subsuelo

Cocheras: 2 subsuelo


Las imágenes utilizadas son meramente ilustrativas. El proyecto podrá sufrir cambios y/o modificaciones sin previo aviso, en caso que los entes públicos lo requiriesen o el proceso constructivo lo demande.
Avance general
Fecha estimada de entrega: 2027
