
DM63 | 3 de febrero 2962
Más abierto, más verde.
DM63 es una invitación a una nueva espacialidad. Sus líneas arquitectónicas te invitan a dialogar constantemente con la idea de amplitud representada en un todo donde el adentro y el afuera se relacionan integralmente, donde la amplitud toma un lugar predominante y se abre hacia un entorno más natural. El encuentro continuo con espacios de mucho aire busca alcanzar el ideal soñado: una convivencia más amena, más natural, más relajada, en medio de la urbe. La perspectiva amplia y diversa de este desarrollo es un diferencial para aquellos que buscan propuestas innovadoras y que hagan contemplar siempre más allá.
En Di Mauro apostamos a nuevas formas de vida desde un enfoque vanguardista adaptado a los tiempos que corren. Trabajamos en desarrollos que respondan a las necesidades y deseos de nuestros clientes, aceptando cada nuevo desafío con un objetivo claro: vivir mejor. Nuestra filosofía de trabajo entiende que, para el bienestar de nuestros clientes, la convivencia con la naturaleza no se puede negociar.
PROYECTO EN CONSTRUCCIÓN | FIDEICOMISO AL COSTO EN PESOS
Forma de pago inicial: 25% + 36 cuotas ajustables con C.A.C

EDIFICIO DE 4 PISOS
UNIDADES
1 y 2 dormitorios
AMENITIES
asador, piscinas y solárium
COCHERAS
optativas en planta baja y subsuelo

Un conectar más integral.
Planta baja
Hall ingreso
Cochera: 2 unidades
Planta baja: 00-03 – 2 dormitorios
Superficie cubierta: 81.72 m2
Superficie semicubierta: Patio: 50.37 m2 – Balcón: 18.31 m2
Superficie Total: 150.40 m2
Cocina: 2.25 x .4.55 m. | Living Comedor: 3.00 x 5.30 m.
Dormitorio Suite: 3.30 x 3.80 m. | Dormitorio: 3.60 x 3.40 m.
Patio: 8.85 x 8.85 m.
Planta baja: 00-04 – 2 dormitorios
Superficie cubierta: 84.83 m2
Superficie semicubierta: Patio: 40.92 m2 – Balcón: 20.68m2
Superficie Total: 146.43 m2
Cocina: 3.60 x 2.45 m. | Living Comedor: 3.70 x 6.00 m.
Dormitorio Suite: 3.05 x 4.10 m. | Dormitorio: 3.70 x 3.10 m.
Patio: 18.70 x 4.70 m. | Piscina: 2.10 x 3.00 m.
SENTIRTE EN CASA
La amplitud de una casa, la comodidad de un departamento
La amplitud de una casa, la comodidad de un departamento





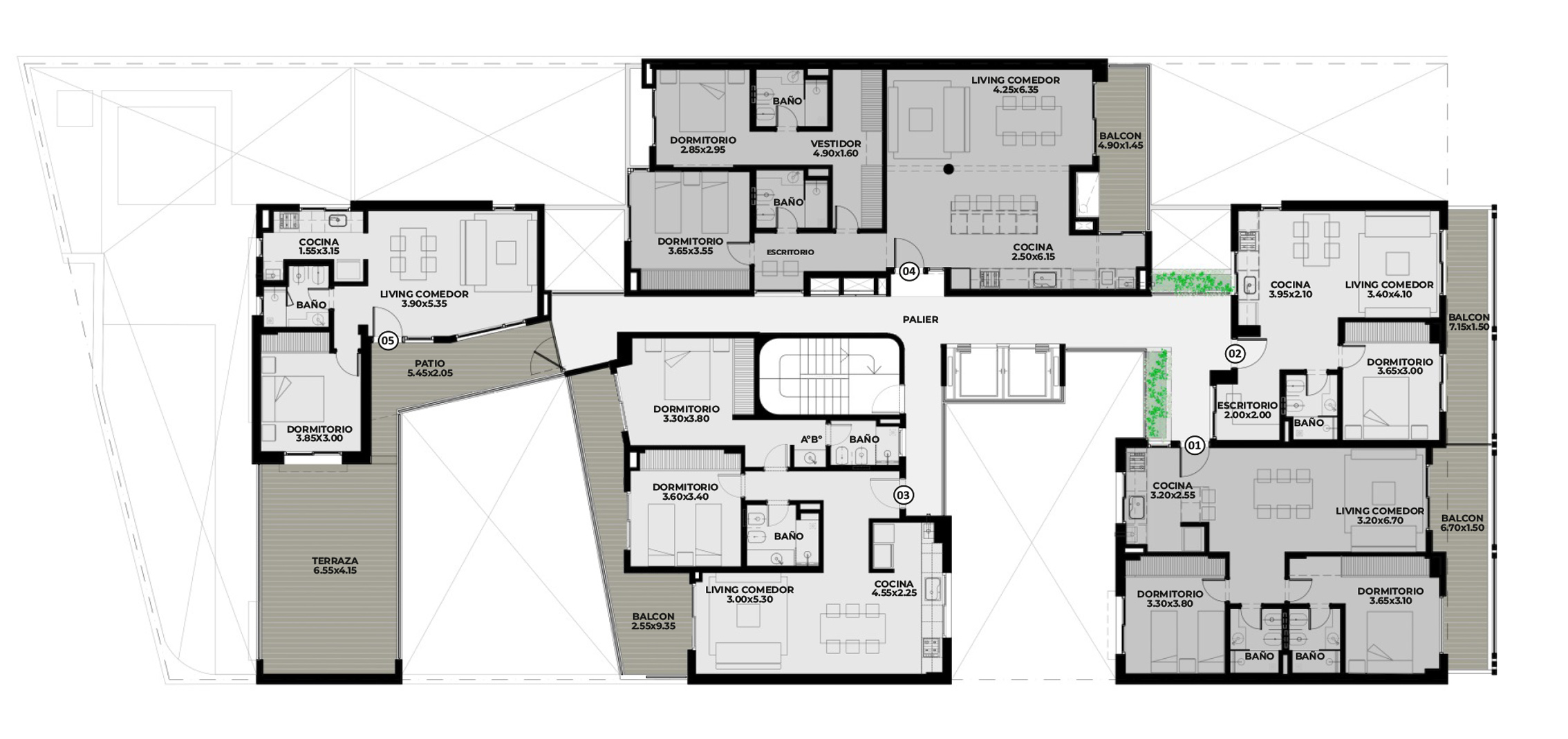
Piso 1: 01-01 – 2 Dormitorios
Superficie cubierta: 71.91 m2
Superficie semicubierta: 12.27 m2 | Superficie Total 84.18 m2
Cocina: 3.20 x 3.55 m. | Living Comedor: 3.20 x 6.70 m.
Dormitorio Suite: 3.65 x 3.10 m. | Dormitorio: 3.30 x 3.80 m.
Balcón: 6.70 x 1.50 m.
Piso 1: 01-02 – 1 Dormitorios +
Superficie cubierta: 50.95 m2
Superficie semicubierta: 11.37 m2 | Superficie Total 62.32 m2
Cocina: 3.95 x 1.20 m. | Living Comedor: 3.40 x 4.10 m.
Dormitorio: 3.65 x 3.00 m. | Escritorio: 2.00 x 2.00 m.
Balcón: 7.15 x 1.50 m.

Piso 1: 01-03 – 2 dormitorios
Superficie cubierta: 81.46 m2
Superficie semicubierta: 15.46 m2
Superficie Total 96.92 m2
Cocina: 4.55 x 2.25 m. | Living Comedor: 3.00 x 5.30 m.
Dormitorio Suite: 3.30 x 3.80 m. | Dormitorio: 3.60 x 3.40 m.
Balcón: 2.55 x 9.35 m.
Piso 1: 01-05 – 1 dormitorio
Superficie cubierta: 50.70 m2
Superficie semicubierta: 30.40 m2 Patio – Balcón: 10.64 m2
Superficie Total 91.74 m2
Cocina: 1.55 x 3.15 m. | Living Comedor: 3.90 x 5.35 m.
Dormitorio: 3.85 x 3.00 m. | Patio: 5.45 x 2.05 m.
Terraza: 6.55 x 4.15 m.
Piso 1: 01-04 – 2 dormitorios
Superficie cubierta: 101.42 m2
Superficie semicubierta: 9.25 m2
Superficie Total 110.6 m2
Cocina: 2.50 x 6.15 m. | Living Comedor: 4.25 x 6.35 m.
Dormitorio Suite: 2.85 x 2.95 m. | Dormitorio: 3.65 x 3.55 m.
Escritorio: 4.05 x 1.20 m. | Vestidor: 4.90 x 1.60 m. | Balcón: 4.90 x 1.45 m.


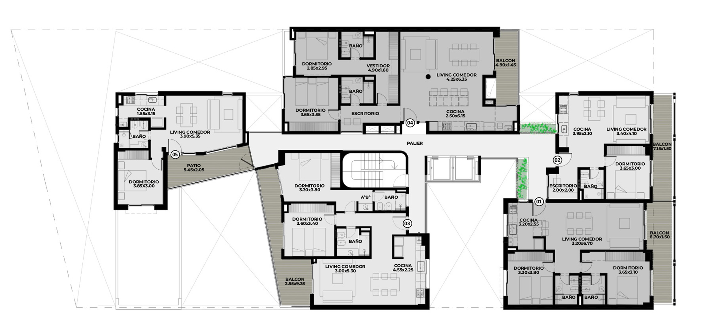
Piso 2 y 3: 02-01 – 2 dormitorios
Superficie cubierta: 71.91 m2
Superficie semicubierta: 12.27 m2
Superficie Total 84.18 m2
Cocina: 3.20 x 3.55 m. | Living Comedor: 3.20 x 6.70 m.
Dormitorio Suite: 3.65 x 3.10 m. | Dormitorio: 3.30 x 3.80 m.
Balcón: 6.70 x 1.50 m.
Piso 2 y 3: 02-02 – 1 dormitorios +
Superficie cubierta: 50.95 m2
Superficie semicubierta: 11.37 m2
Superficie Total 62.32 m2
Cocina: 3.95 x 2.10 m. | Living Comedor: 3.40 x 4.10 m.
Dormitorio: 3.65 x 3.00 m. | Escritorio: 2.00 x 2.00 m.
Balcón: 7.15 x 1.50 m.

Piso 2 y 3: 02-03 – 2 dormitorios
Superficie cubierta: 81.46 m2
Superficie semicubierta: 15.46 m2
Superficie Total: 96.92 m2
Cocina: 4.55 x 2.25 m. | Living Comedor: 3.00 x 5.30 m.
Dormitorio Suite: 3.30 x 3.80 m. | Dormitorio: 3.40 x 3.60 m.
Balcón: 2.55 x 9.36 m.
Piso 2 y 3: 02-05 – 1 dormitorio
Superficie cubierta: 50.70 m2
Superficie semicubierta: 10.64 m2 |
Superficie Total: 61.34 m2
Cocina: 1.55 x 3.15m. | Living Comedor: 3.90 x 5.35 m.
Dormitorio: 3.85 x 3.00 m. | Patio: 5.45 x 2.05 m.
Piso 2 y 3: 02-04 – 2 dormitorios
Superficie cubierta: 101.42 m2
Superficie semicubierta: 9.25 m2
Superficie Total 110.67 m2
Cocina: 2.50 x 6.15 m. | Living Comedor: 4.25 x 6.35 m.
Dormitorio Suite: 2.85 x 2.95 m. | Dormitorio: 3.65 x 3.55 m.
Escritorio: 4.05 x 1.20 | Vestidor: 4.90 x 1.60 | Balcón: 4.90 x 1.45


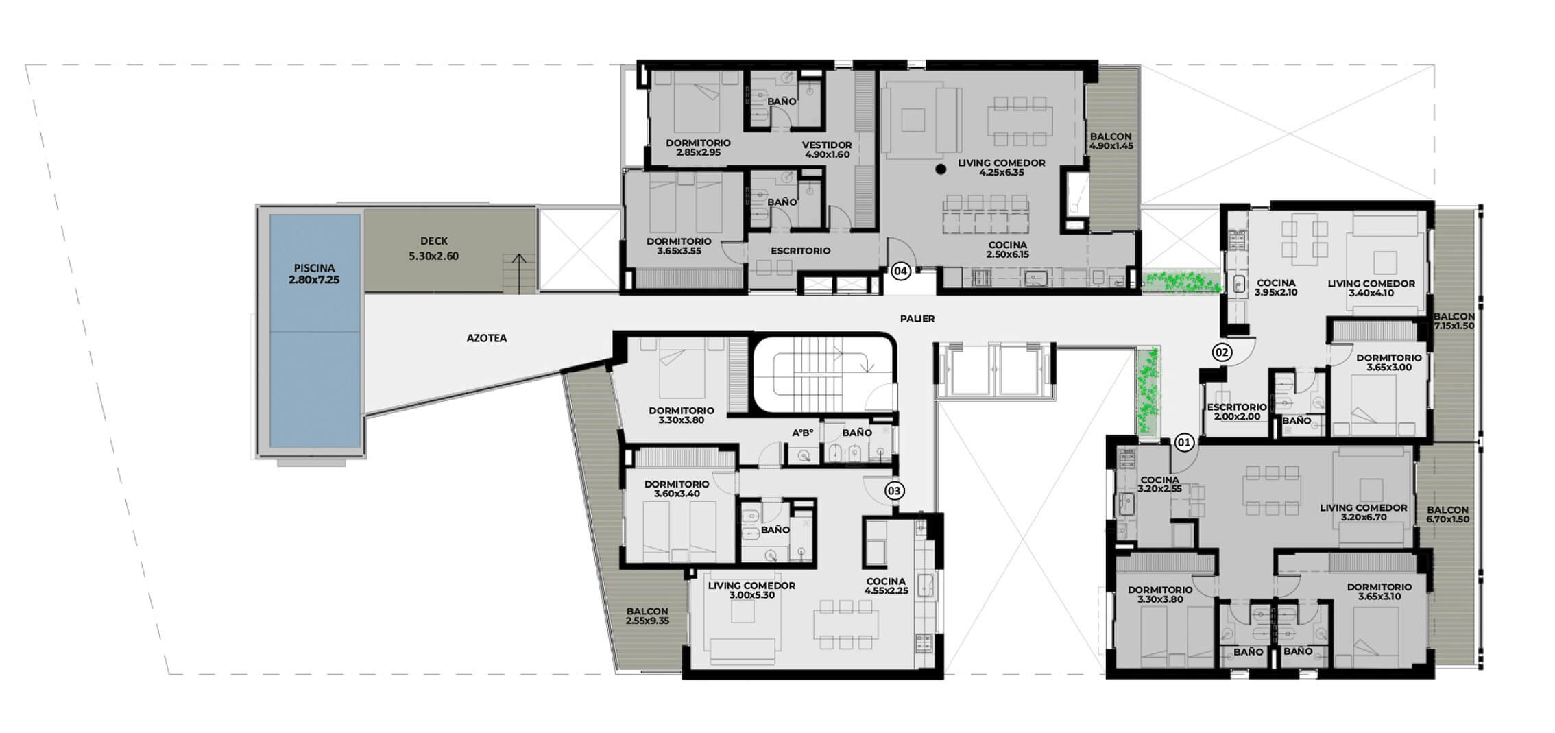
Piso 4: 04-01 – 2 dormitorios
Superficie cubierta: 71.91 m2
Superficie semicubierta: 12.27 m2
Superficie Total: 71.91 m2
Cocina: 3.20 x 2.55 m. | Living Comedor: 3.20 x 6.70 m.
Dormitorio Suite: 3.65 x 3.10 m. | Dormitorio: 3.30 x 3.80 m.
Balcón: x 6.70 x 1.50 m.
Piso 4: 04-02 – 1 dormitorio
Superficie cubierta: 50.95 m2
Superficie semicubierta: 11.37 m2
Superficie Total: 62.3 m2
Cocina: 3.95 x 2.10 m. | Living Comedor: 3.40 x 4.10 m.
Dormitorio: 3.65 x 3.00 m. | Escritorio: 2.00 x 2.00 m.
Balcón: 7.15 x 1.50 m.

Piso 4: 04-03 – 2 dormitorios
Superficie cubierta: 81.46 m2
Superficie semicubierta: 15.46 m2
Superficie Total: 96.92 m2
Cocina: 4.50 x 2.10 m.
Living Comedor: 3.10 x 5.35 m.
Dormitorio Suite: 3.75 x 3.40 m. | Dormitorio: 3.15 x 3.75 m.
Balcón: 9.36 x 2.57 m.
Piso 4: 04-04 – 2 dormitorios
Superficie cubierta: 101.42 m2
Superficie semicubierta: 9.25 m2
Superficie Total: 110.64 m2
Cocina: 2.50 x 6.15 m. | Living Comedor: 4.25 x 6.35 m.
Dormitorio Suite: 2.85 x 2.95 m. | Dormitorio: 3.65 x 3.55 m.
Escritorio: 4.05 x 1.20 | Vestidor: 4.90 x 1.60 | Balcón: 4.90 x 1.45
Deck: 5.30 x 2.60 | Piscina: 2.80 x 7.25



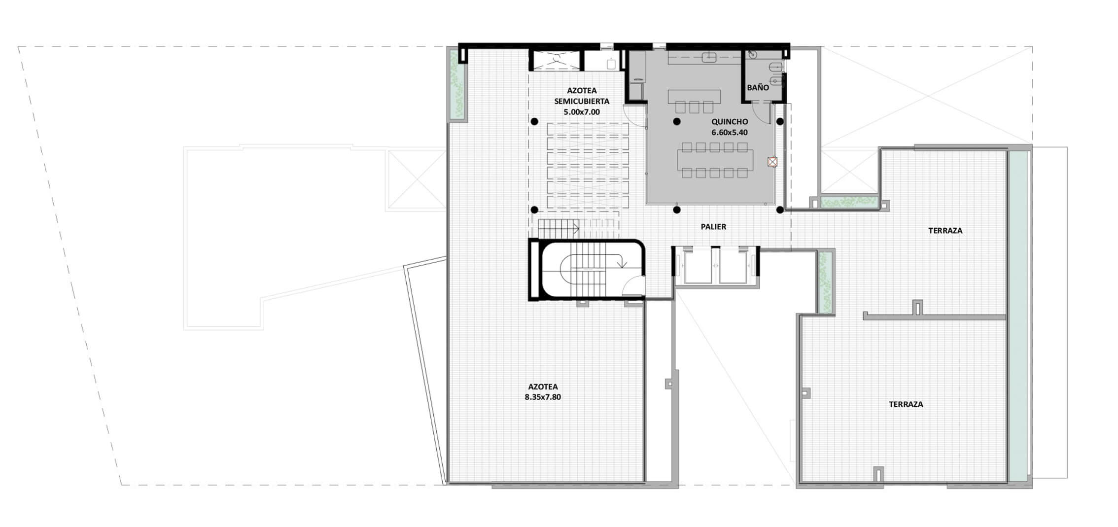
Amenities
Quincho Cerrado: 6.60 x 5.40 m.
Azotea Semicubiera /Asador: 6.00 x 7.00 m.
Azotea: 8.35 .x 7.80 m.








Subsuelo
Cochera: 16 unidades
Espacio para bicicletas


Las imágenes utilizadas son meramente ilustrativas. El proyecto podrá sufrir cambios y/o modificaciones sin previo aviso, en caso que los entes públicos lo requiriesen o el proceso constructivo lo demande.
Avance general
Fecha estimada de entrega: 2027
