
DM64 | Callao 757
Al alcance de todo, al encuentro de todos.
DM64 es la representación de que todo lo que querés puede ser posible: vivir en la zona más privilegiada de la ciudad y contar con espacios de gran tamaño que fortalecen los encuentros. La amplitud de las áreas comunes y la optimización del diseño de nuestras unidades se ajusta a las diversas formas de vivir. Asimismo, estar ubicado en uno de los barrios más buscados destaca la particularidad de este nuevo desarrollo y reafirma nuestra filosofía de trabajo.
En Di Mauro nos centramos en la comodidad y el bienestar de nuestros clientes. El origen de nuestro trabajo es encontrar cada día el entorno y las características que más acompañen a los diferentes proyectos de vida. Cumplir el sueño de vivir en uno de los barrios más buscados y con grandes potencialidades es una de nuestras características de más valor.
PROYECTO EN CONSTRUCCIÓN | FIDEICOMISO AL COSTO EN PESOS
Forma de pago inicial: 25% + 30 cuotas ajustables con C.A.C

EDIFICIO DE 12 PISOS
UNIDADES
monoambiente, 1, 2 y 3 dormitorios
AMENITIES
en planta baja, salón de usos multiples + asador. Piscina, solárium y jardín
COCHERAS
optativas en planta de subsuelo

Dentro y fuera la amplitud del verde.
Piso 1
1 dormitorio
Aprox. 67m2
Aprox. 67m2
01-01 – Orientación: frente
01-03 – Orientación: contra frente
Monoambiente
Aprox. 40m2
Aprox. 40m2
01-02 – Orientación: frente
01-03 – Orientación: contra frente



Pisos 2 – 3
1 dormitorio
Aprox. 67m2
Aprox. 67m2
02-01 – Orientación: frente
02-03 – Orientación: contra frente
Duplex 1 dormitorio
Aprox. 80m2
Aprox. 80m2
02-02 – Orientación: frente
02-04 – Orientación: contra frente


1 dormitorio
Aprox. 65m2
Aprox. 65m2
03-02 – Orientación: contra frente
1 dormitorio
Aprox. 67m2
Aprox. 67m2
03-01 – Orientación: frente



Pisos 4 – 5 – 6
2 dormitorios
Aprox. 108m2
Aprox. 108m2
04-02 – Orientación: contra frente
05-02 – Orientación: contra frente
06-02 – Orientación: contra frente
2 dormitorios
Aprox. 109m2
Aprox. 109m2
04-01 – Orientación: frente
05-01 – Orientación: frente
06-01 – Orientación: frente

Piso 7
3 dormitorios
Aprox. 131m2 + terraza 107m2
Aprox. 131m2 + terraza 107m2
07-01 – Orientación: frente y contra frente

Pisos 8 – 9 – 10 – 11
3 dormitorios
Aprox. 131m2
Aprox. 131m2
08-01 – Orientación: frente y contra frente
09-01 – Orientación: frente y contra frente
10-01 – Orientación: frente y contra frente
11-01 – Orientación: frente y contra frente




Piso 12
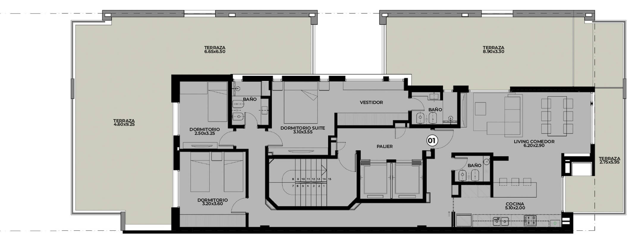
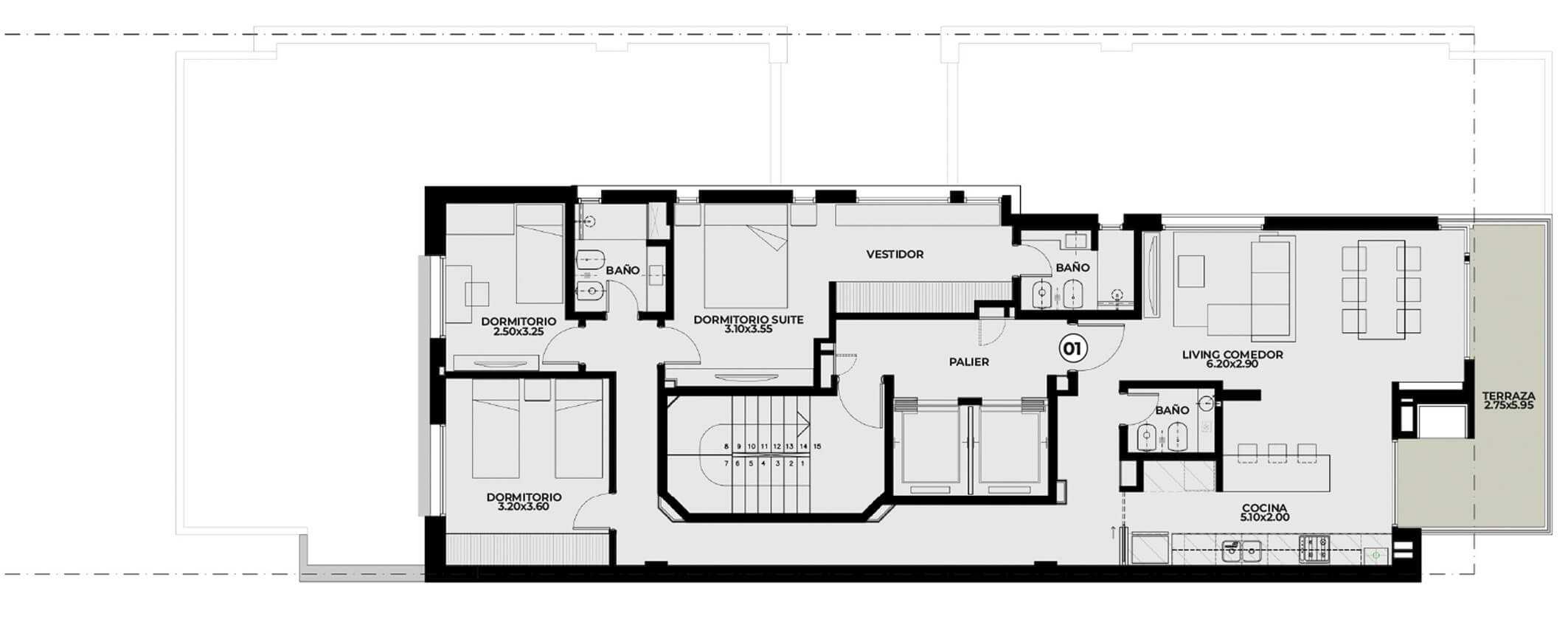
3 dormitorios
Aprox. 130m2 + azotea privada 94m2
Aprox. 130m2 + azotea privada 94m2
07-01 – Orientación: frente





Planta baja
Hall de Ingreso
Cochera independiente
Ingreso a cocheras Subsuelo
Bicicletero
Amenities en PB
Salon de usos multiples
Asador
Parque Jardín: 300 m2.
Terraza verde + piscina / solarium




Subsuelo



Las imágenes utilizadas son meramente ilustrativas. El proyecto podrá sufrir cambios y/o modificaciones sin previo aviso, en caso que los entes públicos lo requiriesen o el proceso constructivo lo demande.
Avance general
Fecha estimada de entrega: 2027
