
LOS ROBLES | Colón 133, Rafaela.
Todo lo que necesitás, en el corazón de la ciudad
Los Robles es un proyecto de vanguardia ubicado en un lugar privilegiado de la ciudad de Rafaela, a pocos metros de la Plaza Central. El mismo está diseñado para brindar amplitud, mediante la composición de sus espacios y el diálogo permanente con el entorno.
La integración entre los espacios interiores y exteriores permite aprovechar la luz natural, mejorar la ventilación y disfrutar ambientes más abiertos y conectados.
Con más de 55 años construyendo en la ciudad de Rosario, Di Mauro llega a Rafaela con la misma convicción de siempre: desarrollar proyectos innovadores que se adapten a las nuevas formas de vivir.
PROYECTO EN CONSTRUCCIÓN | FIDEICOMISO AL COSTO EN PESOS
Forma de pago inicial: 25% + 30 cuotas ajustables con C.A.C

EDIFICIO DE 9 PISOS
UNIDADES
1, 2 y 3 dormitorios
Local Comercial en Planta Baja
AMENITIES
Azotea: Galería, asador, piscinas y solárium
COCHERAS
optativas en planta baja y entrepiso

Un proyecto de vanguardia, cerca de todo.
Piso 1: 01 – 1 Dormitorio
Superficie cubierta: 41,52 m2
Superficie semicubierta: 5,91 m2 | Superficie Total 47,43 m2
Living Comedor | Cocina: 3,14 x 5,49 m.
Balcón: 3,07 x 1,83 m. | Dormitorio: 3,00 x 3,30 m.
Baño: 1,91 x 1,57 m
Piso 1: 02 – 1 Dormitorio
Superficie cubierta: 42,10 m2
Superficie semicubierta: 4,72 m2 | Superficie Total 46,82 m2
Living Comedor | Cocina: 3,20 x 5,49 m.
Balcón: 3,03 x 1,28 m. | Dormitorio: 3,00 x 3,10 m.
Baño: 1,90 x 1,57 m.

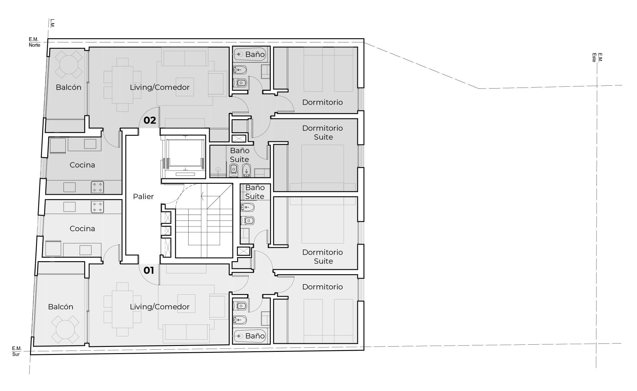
Piso 2 a 6: 01 – 2 dormitorios
Superficie cubierta: 75,13 m2
Superficie semicubierta: 7,97 m2
Superficie Total 83,10 m2
Living Comedor: 3,50 x 6,00 m. | Cocina: 2,47 x 3,35 m.
Balcón: 3,07 x 2,20 m.
Dormitorio: 2,95 x 3,60 m. | Dormitorio Suite: 3,12 x 3,60 m.
Baño Suite: 2,58 x 1,30 m.| Baño: 2,00 x 1,62 m.
Piso 2 a 6: 02 – 2 dormitorios
Superficie cubierta: 75,66 m2
Superficie semicubierta: 6,75 m2
Superficie Tota: 82,41 m2
Living Comedor: 3,47 x 6,00 m. | Cocina: 2,47 x 3,20 m.
Balcón: 3,03 x 1,65 m. | Dormitorio: 2,85 x 3,60 m.
Dormitorio Suite: 3,12 x 3,60 m. | Baño Suite: 1,40 x 2,59 m.
Baño: 1,90 x 1,62 m.

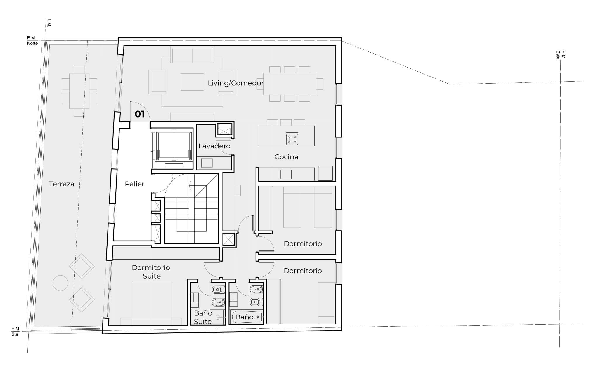
Piso 7: 01 – 3 dormitorios
Superficie cubierta: 118,52 m2
Superficie semicubierta: 43,89 m2
Superficie Total 162,41 m2
Living Comedor: 3,47 x 9,75 m. | Cocina: 2,52 x 3,52 m.
Terraza: 13,00 x 3,21 m. | Dormitorio: 3,12 x 3,52 m.
Dormitorio: 2,95 x 3,16 m. | Dormitorio Suite: 3,60 x 3,50 m.
Baño Suite: 1,94 x 1,60 m. | Baño: 1,92 x 1,57 m.

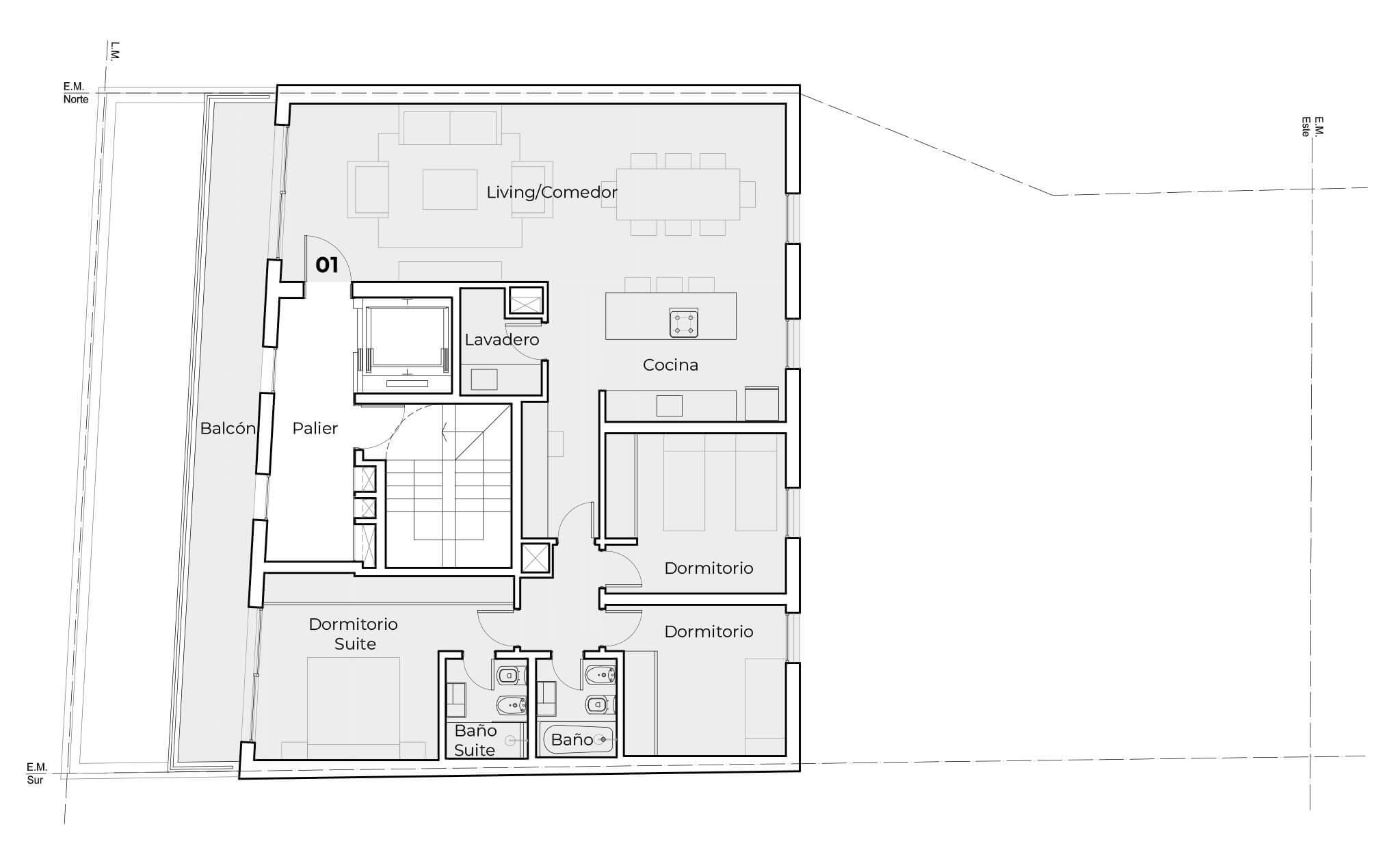
Piso 8 y 9: 01 – 3 dormitorios
Superficie cubierta: 118,52 m2
Superficie semicubierta: 18,56 m2
Superficie Total: 137,08 m2
Living Comedor: 3,47 x 9,75 m. | Cocina: 2,52 x 3,52 m.
Balcón: 13,00 x 1,30 m. | Dormitorio: 3,12 x 3,52 m.
Dormitorio: 2,95 x 3,16 m. | Dormitorio Suite: 3,60 x 3,50 m.
Baño Suite: 1,94 x 1,60 m. | Baño: 1,92 x 1,57 m.


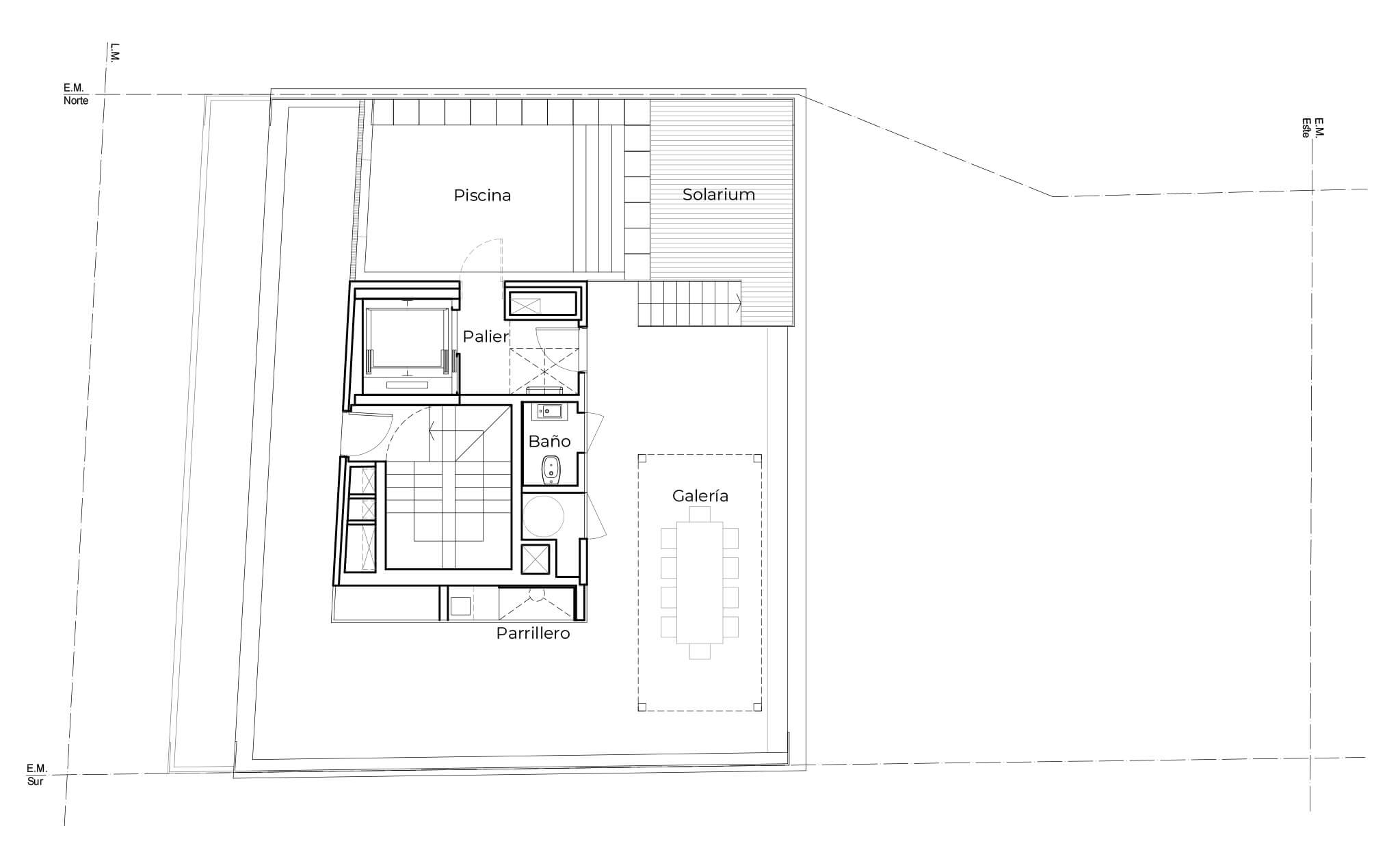
Amenities: Azotea
Galería
Superficie semicubierta: 12 m2 | 5,00 x 2,40 m.
Piscina
Superficie: 14,49 m2 | 2,86 x 5,05 m.
Solarium
Superficie: 11,44 m2 | 3,50 x 3,27 m.


Entrepiso

Planta baja
Local comercial
Superficie cubierta: 42,11 m2 | 5,51 x 5,62 m.


Las imágenes utilizadas son meramente ilustrativas. El proyecto podrá sufrir cambios y/o modificaciones sin previo aviso, en caso que los entes públicos lo requiriesen o el proceso constructivo lo demande.
Avance general
Fecha estimada de entrega: 2027
